Спланировал отопление после расчёта теплопотерь дома (сылка).

Основная нагрузка и автоматика на радиаторах, тёплый пол для комфорта.

Радиаторы выбрал алюминевые Fondital Astor S5 (Италия).
Термостатические головки и клапана Heimeier (Германия), клапан брал осевой, чтоб ручка была вдоль батареи, а не выпирала вперёд.
Трубопровод из армированного стекловолокном полипропилена (Турции).

Подвал:

В подвале двухтрубная система отопления.
Топочная в подвале, из котла выходит труба диаметра 32мм в гребёнку из полипропилена 40мм, а уже выходы на магистрали 20мм.
Где каждая ветка не превышает 5кВт/ч тепла, что достаточно для трубы в 20мм.

Первый этаж:

На первом этаже тоже двухтрубная система отопления.

Второй этаж:

А вот на втором, лучевая система отопления, где гребёнка виде полипропиленовой трубы диаметром 40мм.

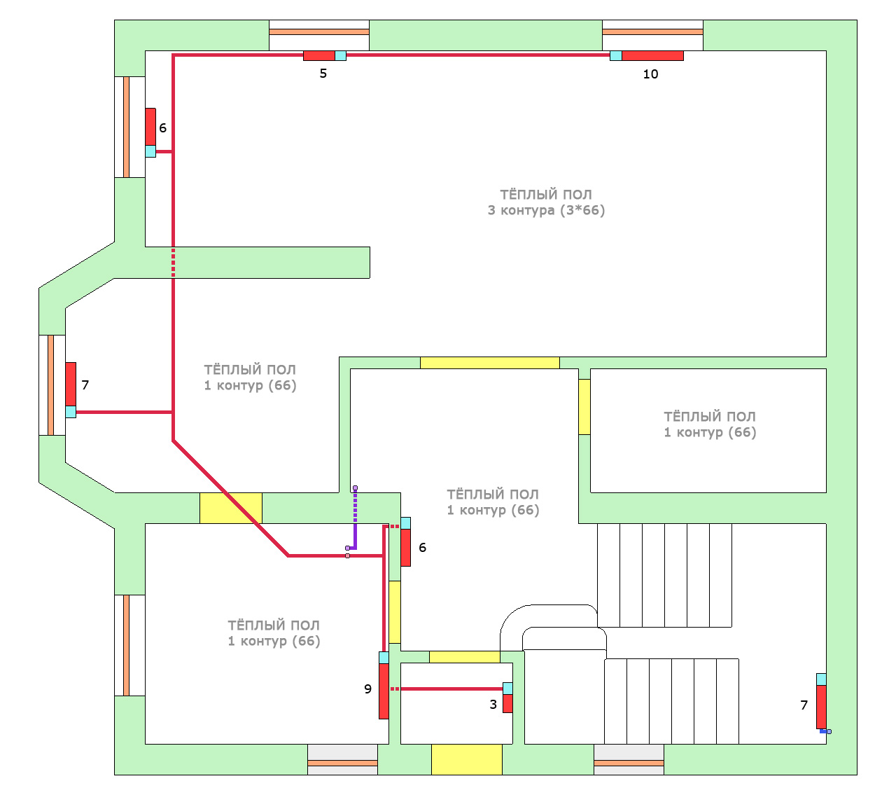
Описание чертежей

Линия магистрали итёд в две трубы, где:
  • Синяя линия - магистраль топочной и лесницы.
  • Розовая линия - магистраль подвала.
  • Красная линия - магистраль первого этажа.
  • Фиолетовая линия - магистраль второго этажа.
Возле каждой батареи стоит цифра количество рёбер, и голубым отмечена с какой стороны термоголвка.
Категория: Информация
Дата: 25.08.2015
Copyright SuperAnt © 2025
0.001 s.