Хочу рассказать как я сделал кухню своими руками.
Сразу не было мысли, делать её самому. Но после походов по конторам и видя их качество и цены, понимал, что лучше сделать самому.
И тут началось изучение размеров и места расположения элементов.
Ранее наткнувшись на статью Главные аксиомы кухонной геометрии я старался придерживаться всех её правил.
На нашей кухне холодильник мог стоять только в углу, вдалеке от окна, что сразу убрало возможность угловой кухни. Жена не очень этому обрадовалась, но позже была не против, я лично не стремился к угловой.
Несколько недель мы чертили и перечерчивали расположение всех элементов, где и что будет стоять, какую использовать фурнитуру, пришли к следующему:

В 3d без фасадов и выдвижных ящиков:

Первая стадия позади, мы знали что хотим, вечером сделал раскрой всех элементов.
И 12.03.2013 поехали в ближайшую контору. Жена долго выбирала цвета фасадов и столешницы.
Покуда делали распил, я оперативно занялся укладкой плитки на рабочей поверхности:

Спустя время поклеил обои:

19.03.2013 Привез ДСП, разложил (1)
21.03.2013 Приклеил кромку на будущие ящики (1,5)
25.03.2013 Собрал первый ящик №2 (1,5)
28.03.2013 Привез столешницу, подготовил элементы к ящикам (2,5)
30.03.2013 Собрал 4 ящика №1, 3, 4, 5 (1,5)
31.03.2013 Собрал 3 верхних шкафчика без фасада, и нижний длинный (7)
02.04.2013 Укрепил длинный шкаф (0,5)
03.04.2013 Повесил 4 выдвижных ящика (2)
06.04.2013 Шкафчик первый готов, 2 ящика выдвижных повесил (5)
13.04.2013 3 верхних шкафчика готовы, врезана вытяжка (8)
14.04.2013 Низ собран, укреплён духовой шкаф, положил столешницу, вырезал под мойку (10)
18.04.2013 Укрепил нижние фасады, микроволновку (8)
20.04.2013 Установил варочную панель, посудомоечную машину, трубу вытяжки, плинтус (8)
Итого на монтаж мебели кухни я потратил почти 58 часов.
Что получилась по ценам ($):
- ДСП, раскрой, столешница 500
- Фурнитура 170
- Метизы и другое 45
- Мойка из ненатурального камня 110
- Смеситель 105
Итого без техники около 930$
А теперь немного фото результата:


Посудомойка:

Вытяжка в шкафчике:

Выдвижной ящик под духовым шкафом, полезная высота 28 см:

Глубокая мойка, мечта жены:

Не так уж и тесно под мойкой, как казалось:

Стык шкафов с плиткой:

Сразу не было мысли, делать её самому. Но после походов по конторам и видя их качество и цены, понимал, что лучше сделать самому.
И тут началось изучение размеров и места расположения элементов.
Ранее наткнувшись на статью Главные аксиомы кухонной геометрии я старался придерживаться всех её правил.
На нашей кухне холодильник мог стоять только в углу, вдалеке от окна, что сразу убрало возможность угловой кухни. Жена не очень этому обрадовалась, но позже была не против, я лично не стремился к угловой.
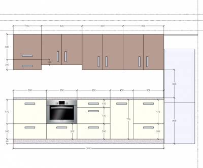
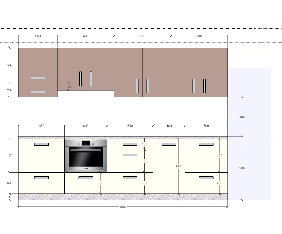
Несколько недель мы чертили и перечерчивали расположение всех элементов, где и что будет стоять, какую использовать фурнитуру, пришли к следующему:
- Холодильник в углу, кухня прямая.
- Духовой шкаф на 45-47 литров (высота 46 см, вместо 60 см).
- Дверки верхних шкафчиков обычные, без подъёмников на обычных петлях.
- Внизу вместо шкафчиков сделать выдвижные ящики.

В 3d без фасадов и выдвижных ящиков:

Первая стадия позади, мы знали что хотим, вечером сделал раскрой всех элементов.
И 12.03.2013 поехали в ближайшую контору. Жена долго выбирала цвета фасадов и столешницы.
Покуда делали распил, я оперативно занялся укладкой плитки на рабочей поверхности:

Спустя время поклеил обои:

19.03.2013 Привез ДСП, разложил (1)
21.03.2013 Приклеил кромку на будущие ящики (1,5)
25.03.2013 Собрал первый ящик №2 (1,5)
28.03.2013 Привез столешницу, подготовил элементы к ящикам (2,5)
30.03.2013 Собрал 4 ящика №1, 3, 4, 5 (1,5)
31.03.2013 Собрал 3 верхних шкафчика без фасада, и нижний длинный (7)
02.04.2013 Укрепил длинный шкаф (0,5)
03.04.2013 Повесил 4 выдвижных ящика (2)
06.04.2013 Шкафчик первый готов, 2 ящика выдвижных повесил (5)
13.04.2013 3 верхних шкафчика готовы, врезана вытяжка (8)
14.04.2013 Низ собран, укреплён духовой шкаф, положил столешницу, вырезал под мойку (10)
18.04.2013 Укрепил нижние фасады, микроволновку (8)
20.04.2013 Установил варочную панель, посудомоечную машину, трубу вытяжки, плинтус (8)
Итого на монтаж мебели кухни я потратил почти 58 часов.
Что получилась по ценам ($):
- ДСП, раскрой, столешница 500
- Фурнитура 170
- Метизы и другое 45
- Мойка из ненатурального камня 110
- Смеситель 105
Итого без техники около 930$
А теперь немного фото результата:


Посудомойка:

Вытяжка в шкафчике:

Выдвижной ящик под духовым шкафом, полезная высота 28 см:

Глубокая мойка, мечта жены:

Не так уж и тесно под мойкой, как казалось:

Стык шкафов с плиткой:

Категория: Разное, своими руками
Дата: 24.04.2013
Категории раздела
Контакты
superant@tut.by




