Фотогалерея
Главная
Статьи
Дневник
Фотогалерея
Внешний вид камина
Дизайн камина закрепленный советом семьи :)
Дата: 10.03.2012
Разрез планируемого камина
Дата: 22.02.2012
Дизайн камина №1
Первый утвержденный на совете семьи вариант камина :)
Дата: 21.02.2012
Трубы
Дизайн труб
Дата: 21.02.2012
Зимняя прогулка с Женой
8 января 2012г
С женой съездили посмотреть как зимует наш домик
Дата: 20.01.2012
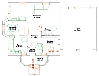
План второго этажа
Дата: 09.10.2011
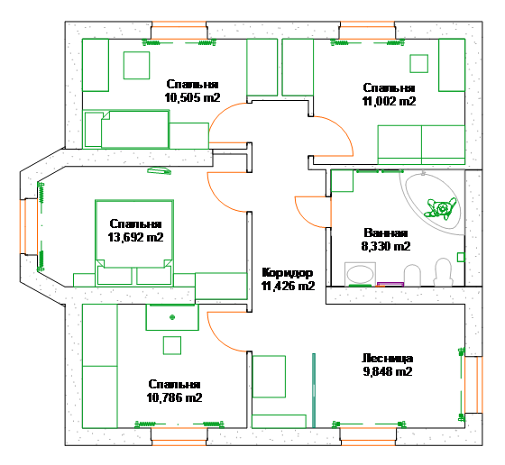
План первого этожа
Дата: 09.10.2011
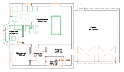
План подвала
Дата: 09.10.2011
Приямки
Дата: 03.10.2011
Схемка дренажа окон подвала
По быстрому наметал
Дата: 25.07.2011
1
2
3
4
Следующая
Последняя
Контакты
superant@tut.by
@superant30
Copyright SuperAnt © 2025
0.002 s.